














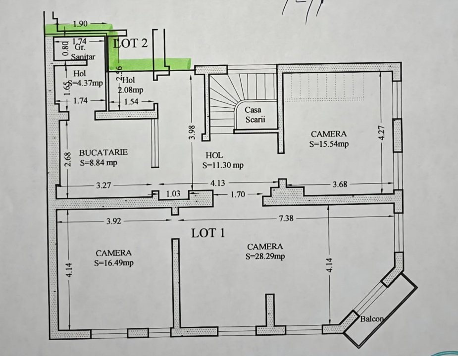
La etajul 1 al unei clădiri situate chiar în centrul orașului, pe Strada Ștefan Mihăileanu, este disponibil un spațiu de birouri pregătit pentru activitate imediată.
Interiorul este compartimentat practic în 3 birouri, completat de grup sanitar și bucătărie, asigurând toate facilitățile necesare pentru un mediu de lucru organizat. Spațiul poate fi închiriat atât mobilat, cât și nemobilat, oferind flexibilitate în funcție de nevoile viitorului chiriaș.
Disponibilitatea imediată face ca acest birou să fie alegerea potrivită pentru cei care își doresc o relocare rapidă în zona centrală.